Nybygg Sørli besøksgård

Sørli besøksgård rustes opp for å gi skoler og barnehager et godt undervisningstilbud. Nybygg på 250 kvadratmeter skal sikre gode fasiliteter for ansatte.

Mandag 20. april kl. 12 er det offisiell åpning av det nye administrasjonsbygget til Sørli besøksgård, på Bøler i Østmarka.

Med nybygget får de ansatte etterlengtede fasiliteter som vannklosett, dusj, garderobe, kjøkken og kontorplass.

Med dette åpner vi første byggetrinn i prosjektet. Et byggetrinn to, som det foreløpig ikke er bevilget penger til, vil kunne gi besøkende og eventuelt publikum.

Gerd Robsahm Kjørven, etatsdirektør i Bymiljøetaten, leder arrangementet og klipper den symbolske snora. Det vil bli enkel servering

Se invitasjon til arrangementet (JPG, 329.88KiB)

Hva skal vi gjøre?

For å tilfredsstille kravene til arbeidsgiver skal vi bygge kontorplasser, garderober og øvrige fasiliteter for de ansatte på besøksgården.

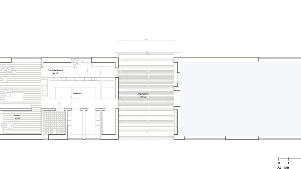
Tegningen viser hva vi håper å få bygget i første byggetrinn

Nybyggets grunnflate blir på cirka 250 m2. Grunnet manglende finansiering er det kun anledning til å bygges omtrent halvparten av arealet i første byggetrinn, som innredes til de ansatte. Prosjektleder har håp om at det i denne første runden også skal være midler til å bygge råbygget på den øvrige halvdelen, det vil si gulv, yttervegger og yttertak. Undervisningskjøkken og all annen innredning til besøkende vil komme i byggetrinn to, forutsatt at det bevilges ytterligere midler. Det er besluttet å sikre stabil vanntilførsel til gården. Vannet er besluttet hentet i en kum på Haraløkka idrettsplass, som innebærer å grave/sprenge en grøft på cirka 150 meter.

Hvor skjer det?

Sørli besøksgård ligger mellom Haraløkka idrettsanlegg og Nøklevann

Hva skjer når?

Bygging og graving startet opp i august 2025. Bygget er besluttet plassert på betongpeler og de første ukene gikk derfor med til betongarbeider.

I begynnelsen av september var arbeidene med fundamenteringen så vidt i gang.

I starten av oktober var fundamenteringen komplett og tømrerarbeidene var godt i gang.
Nybygg med stillas rundt
I starten av desember er bygget nesten klart kranselag, med markering av tett krans. Det mangler kun å legge takpapp på en liten del av taket, før bygget er tett. Kreditering: Oslo kommune/Bymiljøetaten.
Den nye bygget er ferdig utvendig.
Bygget er tett og det jobbes nå hovedsakelig innvendig. Kreditering: Oslo kommune / Bymiljøetaten.
Det bygges inngangsparti som en låvebro til det nye bygget på Sørli besøksgård.
Det nye bygget gir inntrykk av å være en klassisk låve. For å ytterligere forsterke inntrykket bygges inngangspartiet som en låvebro. Kreditering: Oslo kommune / Bymiljøetaten.
Fasaden til de nye bygget på Sørli besøksgård
Det er kun halvdelen av bygget nærmest gårdsbygningen som nå innredes. Kreditering: Oslo kommune / Bymiljøetaten.

Tak og vegger er tette og i løpet av vinteren skal bygget innredes. Prosjektet forventes ferdig i løpet av første kvartal 2026. I første omgang er det kun finansiering til den ene delen av bygget hvor de ansatte skal få dekket basisbehov som toalett, garderobe og kontorplass. Dersom det kommer ytterligere finansiering, vil det det bli byggetfasiliteter i den andre delen.

Hvem er ansvarlig?

Bymiljøetaten er ansvarlig for gjennomføring av prosjektet mens Oslo Byggentreprenør AS er entreprenør.

Kontakt oss

Bymiljøetaten

Prosjektleder: Christer Karlsson

Henvendelser merkes: Nybygg Sørli besøksgård